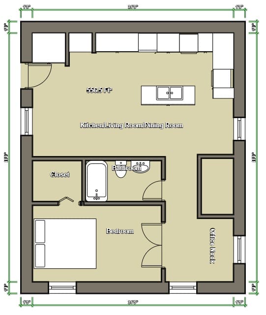
145 Emerald Street South
Stinson
Located in the up and coming Stinson neighbourhood, 145 Emerald Street South is a beautifully renovated 6-unit home close to multiple amenities – schools, parks, St Joe’s Hospital, bus routes, Hamilton Bike Share (SOBI) stations, Corktown, Agusta St and so much more.
There is currently no vacancy in this building.
